1423
739
684
197
ユーザーID:
パスワード :
会員登録はこちら
物件番号:91933
トップページ
-
マンションを探す
-
検索結果一覧
- 物件詳細データ
所在:
高崎市東町
マンション名:
ブリリアタワー高崎アルファレジデンシア
価格:
3,500
万円
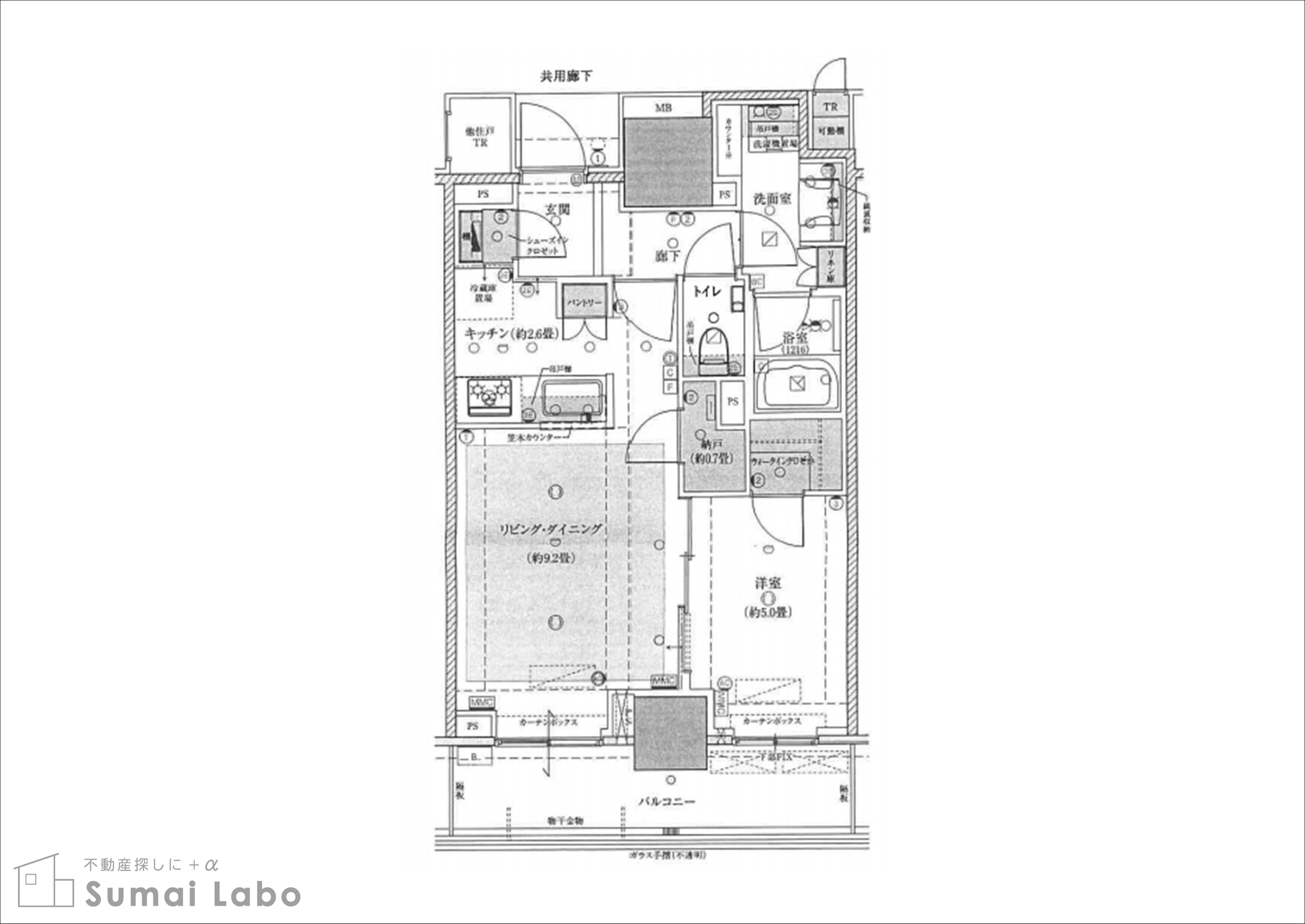
間取:
1LDK 築年月:2020年2月
オーナーチェンジ物件!1Fコンビニ、2Fクリニック!高崎駅まで直結マンションです☆彡
専有面積
45.47㎡
バルコニー面積
0㎡
構造
RC造
階数
28階建ての5階部分
管理組合
有
管理形態
全部委託
管理費
17900
修繕費
3970
駐車場
有(空状況要確認)
角部屋
開口
ペット
可
小学校区
城東小 約750m
中学校区
高松中 約1200m
交通
高崎駅
現況
賃貸中
引渡可能時期
相談
取引態様
媒介
設備
上水道,下水道,電気,都市ガス
備考
インターネット利用料:1665円/月 町会費:200万円/月
利回り:4.45% 年間予定賃料収入:156.00万円
この物件について問い合わせる
お名前
必須
フリガナ
ご住所
必須
E-MAIL
必須
TEL
必須
FAX
入居・購入時期
至急
1ヶ月以内
2ヶ月以内
2~3ヵ月後
4~6ヵ月後
6ヶ月~1年後
1年~2年後
2年~3年後
良い物件があれば
決めていない
物件番号
お問い合わせ
内容
検索結果一覧へ戻る