1447
752
695
37
ユーザーID:
パスワード :
会員登録はこちら
物件番号:91950
トップページ
-
マンションを探す
-
検索結果一覧
- 物件詳細データ
所在:
高崎市元紺屋町
マンション名:
ダイアパレス高崎中央
価格:
490
万円
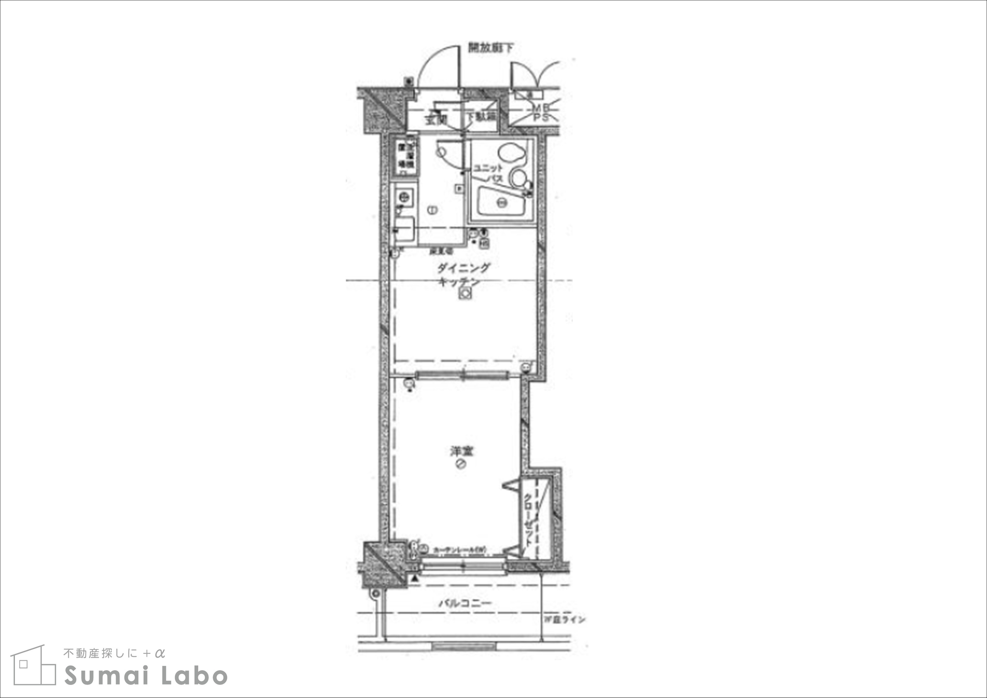
間取:
1DK 築年月:1993年1月
高崎駅まで徒歩約12分、通勤・通学に便利♪周辺には商業施設があり便利な住環境です☆彡
専有面積
27㎡
バルコニー面積
4.5㎡
構造
SRC造
階数
9階建ての3階部分
管理組合
有
管理形態
全部委託
管理費
9700
修繕費
8370
駐車場
有(空状況要確認)
角部屋
開口
南
ペット
不可
小学校区
中央小 約950m
中学校区
高松中 約600m
交通
高崎駅
現況
空家
引渡可能時期
相談
取引態様
媒介
設備
上水道,下水道,電気,都市ガス
備考
管理会社:(株)東急コミュニティー
駐車場:7000~10000円/月 駐輪場:あり バイク置場:あり
事務所使用不可
この物件について問い合わせる
お名前
必須
フリガナ
ご住所
必須
E-MAIL
必須
TEL
必須
FAX
入居・購入時期
至急
1ヶ月以内
2ヶ月以内
2~3ヵ月後
4~6ヵ月後
6ヶ月~1年後
1年~2年後
2年~3年後
良い物件があれば
決めていない
物件番号
お問い合わせ
内容
検索結果一覧へ戻る