1473
753
720
117
ユーザーID:
パスワード :
会員登録はこちら
物件番号:58052
トップページ
-
新築住宅を探す
-
検索結果一覧
- 物件詳細データ
所在:
高崎市岩鼻町1期④
価格:
3,090
万円
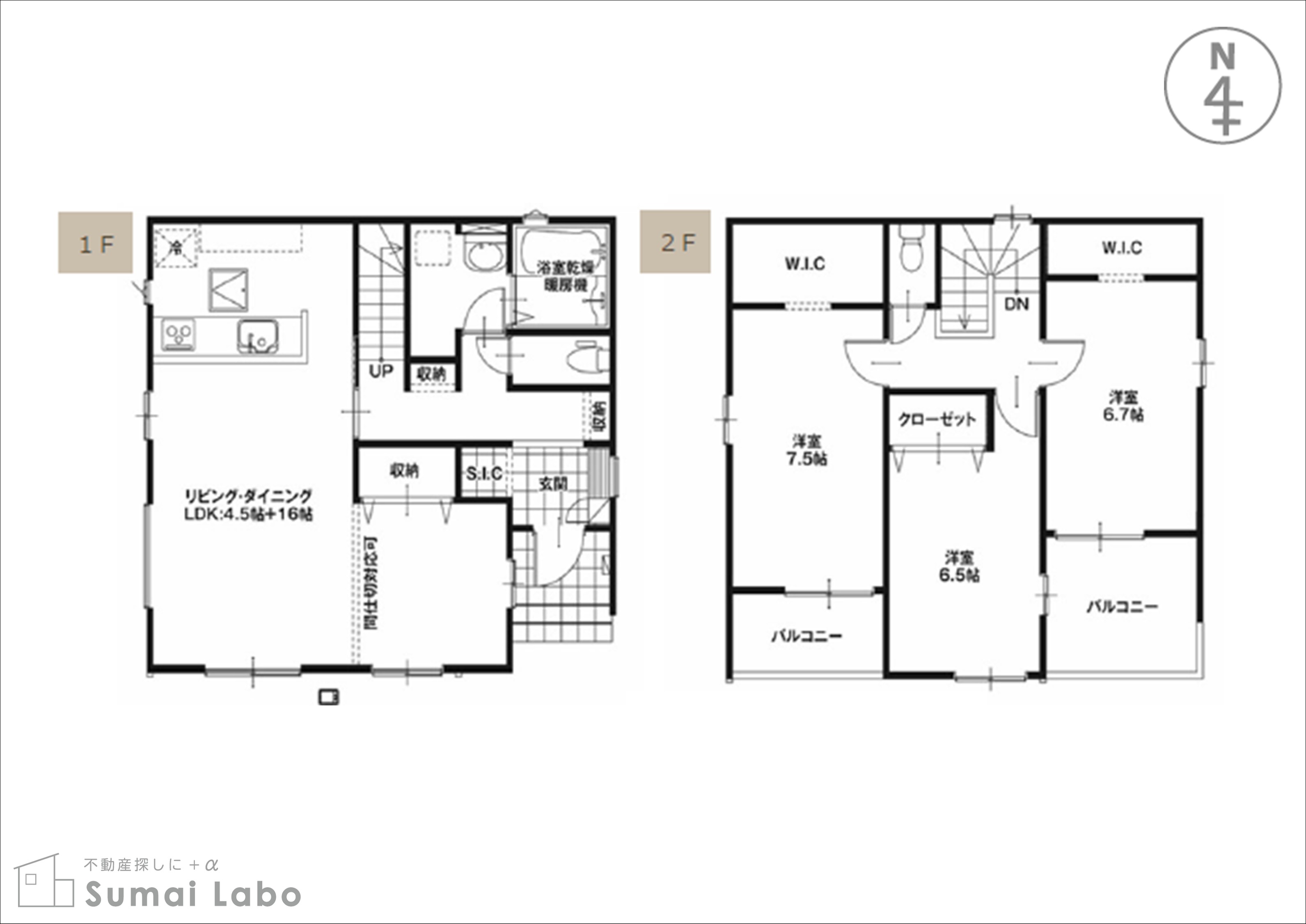
間取:
4LDK 築年月:2025年12月完成予定
全4区画新築分譲地!収納スペースが充実♪周辺に商業施設多数あり利便性のある環境です☆彡
土地面積
218.9㎡ (66.21 坪)
建物面積
105.69㎡ (31.97 坪)
構造
木造2階建
設備
上水道,下水道,電気,LPG
用途地域
一種住居
接道1
南
地目
宅地
接道2
建ぺい率
60 %
容積率
200 %
小学校区
岩鼻小 約1400m
中学校区
矢中中 約2900m
交通
倉賀野駅
現況
備考
建築確認番号:第HPA-25-08462号
私道負担有(協定道路部分として、1号地27.09㎡、2号地118.17㎡、3号地64.85㎡、4号地1.12㎡を所有し1~4号棟相互に通行地役権を設定します。
引渡条件
相談
引渡可能時期
相談
取引態様
媒介
この物件について問い合わせる
お名前
必須
フリガナ
ご住所
必須
E-MAIL
必須
TEL
必須
FAX
入居・購入時期
至急
1ヶ月以内
2ヶ月以内
2~3ヵ月後
4~6ヵ月後
6ヶ月~1年後
1年~2年後
2年~3年後
良い物件があれば
決めていない
物件番号
お問い合わせ
内容
検索結果一覧へ戻る