1424
745
679
62
ユーザーID:
パスワード :
会員登録はこちら
物件番号:58154
トップページ
-
新築住宅を探す
-
検索結果一覧
- 物件詳細データ
所在:
高崎市金古町第16②
価格:
2,180
万円
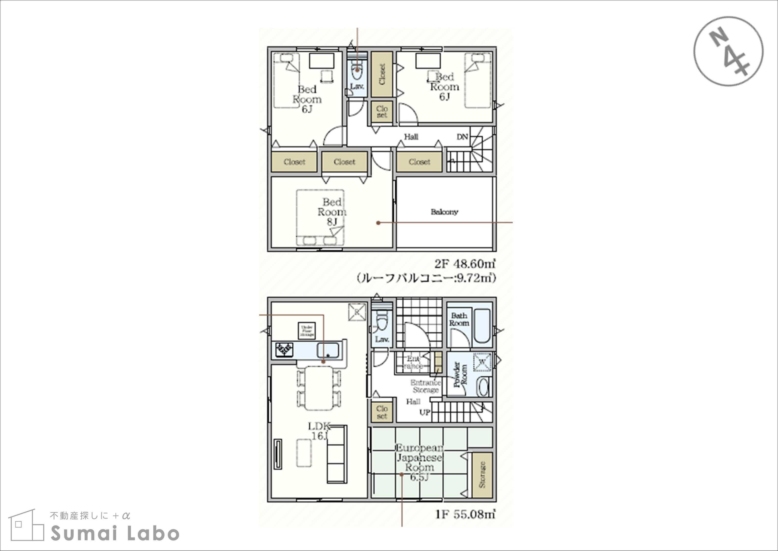
間取:
4LDK 築年月:2026年3月完成予定
金古町新築分葉住宅!駐車スペース2台可能!会話が弾む対面式キッチン☆彡
土地面積
280.55㎡ (84.86 坪)
建物面積
103.68㎡ (31.36 坪)
構造
木造2階建
設備
上水道,電気,浄化槽,LPG
用途地域
一低層
接道1
北東
地目
宅地
接道2
建ぺい率
50 %
容積率
100 %
小学校区
金古南小 約1800m
中学校区
群馬中央中 約2100m
交通
群馬総社駅
現況
備考
建築確認番号:第HPA-25-11962-1号
引渡条件
相談
引渡可能時期
相談
取引態様
媒介
この物件について問い合わせる
お名前
必須
フリガナ
ご住所
必須
E-MAIL
必須
TEL
必須
FAX
入居・購入時期
至急
1ヶ月以内
2ヶ月以内
2~3ヵ月後
4~6ヵ月後
6ヶ月~1年後
1年~2年後
2年~3年後
良い物件があれば
決めていない
物件番号
お問い合わせ
内容
検索結果一覧へ戻る